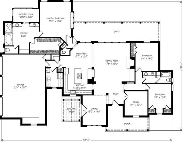
Featured image of post Larry Garnett - Larry garnett's design submission blends the setting of a cozy courtyard neighborhood with a narrow footprint that wraps the home around an inviting and functional side yard.

Larry Garnett - Larry garnett's design submission blends the setting of a cozy courtyard neighborhood with a narrow footprint that wraps the home around an inviting and functional side yard.

Последние твиты от larry garnett (@larrygarnett).